收藏本站 劰载中...网站公告 | 吾爱海洋论坛交流QQ群:835383472

[海洋水文] 海洋方案开发-外海和近海海洋观测站

[复制链接]

f56ab323dcde693cc51911832f0d89aa.jpeg



外海和近海海洋观测站



(一)海洋站系统说明

1、海洋站介绍

外海和近海海洋观测站(海洋站)是实施海洋水文气象观测的有人控制站、自动获取海洋环境观测数据和接受测点数据的重要基础设施,新建外海海洋站监测平台站点的海洋气象(风向、风速、温度、湿度、气压、降水、能见度)、海洋水文(潮汐、表层海水温度、表层海水盐度、海况、海流)和海洋生态(pH、溶解氧、叶绿素、活性磷酸盐、亚硝酸盐-氮、硝酸盐-氮、氨-氮、活性硅酸盐、浮游植物、浮游动物、大气沉降、碳通量等)数据要素,并根据实际需求观测要素进行详细规划设计,实时提供单站探测范围内的观测数据。


2、建设内容

包括站点的系统设计、基本建设、仪器设备选型、购置、安装和调试、避雷设施和其他配套设施的建设。能够借助自动观测设备和常规观测设备相结合的方式对海洋水文、气象及生态进行连续、有效的数据获取,按《海洋观测规范第2部分海滨观测》(GB/T14914.2-2019)要求形成各种标准的数据文件,通过预审员的预审,最后形成标准、准确的规范文件按时上报。


3、海洋站系统功能

(1)海洋水文、气象、生态要素观测功能

实现潮汐、表层海水温度、表层海水盐度、海面风向、风速、温度、湿度、气压、能见度等参数的自动观测;实现海洋生态pH、溶解氧、叶绿素、活性磷酸盐、亚硝酸盐-氮、硝酸盐-氮、氨-氮、活性硅酸盐、浮游植物、浮游动物、大气沉降、碳通量等数据要素观测。

(2)实时数据通讯传输功能

各平台海洋站点到海洋预报减灾中心的数据传输功能通过地面专线和北斗三号卫星实时同步传输实现。

(3)高准确度的数据采集功能

数据采集系统准确度高,各观测数据的准确度均达到相应规范要求;

(4)数据存储功能

各测点的数据存储功能主要体现在数据采集的前端,对传感器所获取的原始数据和接收的测点数据进行短期的存储和备份,保证测点到海洋预报减灾中心的数据上传通道出现故障或数据传输出现失真的情况下,进行数据的重新传输或调取。

(5)适应恶劣环境能力

在高温、高寒、高湿、高盐等自然环境下连续稳定工作。

(6)近、远程监控功能

系统操作简便,易于安装维护和远、近程监控。

(7)防雷保护功能

具有完善的多种防雷保护设计,能有效抵御雷电的干扰。

(8)按照有关规范数据文件格式和记录薄表形式形成观测数据文件。

(9)海洋生态灾害海上在线监测站(系统)可集成水质、生物生态等要素在线监测设备,实现系统周边赤潮、绿潮、局部地区生物爆发等海洋生态灾害发生发展情况、关键影响要素以及灾害影响区域的连续监测能力等功能。

(10)具备太阳能供电功能,可连续不间断工作15天以上。


4、海洋站系统性能

海洋站主要观测要素测量技术指标见下表所示。

929ac2cba2b518b2f13059a6331a48c5.jpeg

0aeadecd8432036a668653f4ae230c96.jpeg


5、系统组成

外海综合平台海洋站水文气象观测系统实现潮汐、表层海水温度、表层海水盐度、海面风向、风速、温度、湿度、气压、能见度等参数的自动观测。主要由数据采集系统(气象观测单元、水文观测单元、生态观测单元)、通讯单元、供电单元、防雷单元、数据接收处理系统、灾害观测系统和水准测量等组成。

数据采集系统主要完成海洋水文、气象、生态诸要素的数据获取、编辑处理和存储,通讯单元完成各测点到数据接收处理系统的数据传输,供电单元完成各测点数据采集系统和通讯单元的工作用电,数据接收处理系统采用监控画面实时显示测点当前的观测数据和日极值,将准确的观测数据进行存储及通过通讯系统发送到上级机关,灾害观测系统对各测点观测海域海面状况进行动态跟踪监测,实时进行画面传输,以了解当时测点观测海域海面的实际情况。

e98383ec9cd7a490076c669946ab7ae2.png

1 海洋监测设备拓扑图


(二)海洋站系统设

1、数据采集系统

主要由气象观测系统、水文观测系统、生态观测系统和其它观测模块构成。

海洋气象观测系统:主要由风向风速、气温、气压、相对湿度、降水、能见度等传感器以及数据处理、存储、传输等模块组成。

海洋水文观测系统:主要由潮位、表层海水温度、表层海水盐度、海流计等传感器以及配套数据处理、存储、传输等模块组成。

生态监测系统:主要由主要由pH、溶解氧、叶绿素、活性磷酸盐、亚硝酸盐-氮、硝酸盐-氮、氨-氮、活性硅酸盐、浮游植物、浮游动物、大气沉降、碳通量等模块组成。

(1)气象观测系统

1设计说明

该系统主要完成海洋气象诸要素气温、气压、相对湿度、风向风速、降水、能见度等数据的采集、处理显示和短期存储,实时将观测数据传输到本站通讯主机汇总。

2)系统功能

实时自动采集气温、气压、相对湿度、风向风速、降水、能见度等要素数据,能够挑选处理得到各要素日极值和日最大值,能够形成《海洋观测规范第2部分海滨观测》(GB/T14914.2-2019)要求格式的数据文件;实时数据通过数据通信单元即时传送到通讯计算机并进入数据通信网络,完成观测资料短期存储和专用计算机汇总,经过资料审核后产生月报表。

3)系统组成

该系统主要由数据采集器、温湿度传感器、气压传感器、风向风速传感器、降水传感器、能见度仪、雨量计等组成。

(2)水文观测系统

1)设计说明

该系统主要完成海洋水文诸要素表层海水温度、表层海水盐度、潮汐、海流数据的采集、处理显示和短期存储,实时将观测数据传输到本站通讯主机汇总。

2)系统功能

实时自动采集表层海水温度、表层海水盐度、潮汐、海流等要素数据,能够挑选处理得到各要素日极值和日最大值,能够形成《海洋观测规范第2部分海滨观测》(GB/T14914.2-2019)要求格式的数据文件;实时数据通过数据通信单元即时传送到通讯计算机并进入数据通信网络,完成观测资料短期存储和专用计算机汇总,经过资料审核后产生月报表。

3)主要技术指标如下:

  • 自动连续地测量、显示和存储水位、水温、盐度数据;

  • 按照《海洋观测规范第2部分:海滨观测》的要求自动判别高、低潮;

  • 存储60天每分钟测量数据;

  • 光纤、SDH专线、4G/5G、北斗三号等方式,可以同时支持上述方式中的两种或以上;

  • 高低潮判别:观测数据出现2小时后即可判出当日高低潮的潮时和潮位,高低潮判别准确。

4)系统组成

该系统主要由潮温盐仪(浮子式水位计、水温盐度传感器)、单点海流计、电源模块、防雷模块和存储模块等组成。

(3)生态监测系统

1)设计说明

该系统主要完成海洋生态观测诸要素pH、溶解氧、叶绿素、活性磷酸盐、亚硝酸盐-氮、硝酸盐-氮、氨-氮、活性硅酸盐、浮游植物、浮游动物、大气沉降、碳通量等数据的采集,实时将观测数据传输到数据接收处理系统汇总。

2)系统功能

实时自动采集pH、溶解氧、叶绿素、活性磷酸盐、亚硝酸盐-氮、硝酸盐-氮、氨-氮、活性硅酸盐、浮游植物、浮游动物、大气沉降、碳通量等要素数据,能够挑选处理得到各要素日极值和日最大值,能够形成数据文件;实时数据通过数据通信单元即时传送到通讯计算机并进入数据通信网络,完成观测资料短期存储和专用计算机汇总,经过资料审核后产生月报表。

3)系统组成

该系统主要由数据采集器、多参数水质分析仪、营养盐在线分析仪、大气颗粒物采样系统、海流计、水中油分析仪、总氮在线分析仪、总磷在线分析仪、高锰酸盐在线分析仪、碳排放(碳通量)监测系统等组成。


2、通讯单元

通讯单元通过多功能通讯终端实现气象观测系统、水文观测系统与数据控制处理系统之间数据交互,保障数据处理控制系统端观测数据实时到报率。数据传输设备分别安装于水文观测系统、气象观测系统与数据处理控制系统,主要由多路通讯模块、4G/5G路由器、无线/专线DTU、北斗三号用户机。


3、供电单元

考虑到平台无市电现场条件,测点供电配套太阳能发电系统,主要由太阳能控制器和太阳能电池板组成。

供电系统主要为各种气象观测系统、水文观测系统、生态观测系统设备运行和数据传输等设备长期稳定运行电力支持。


4、防雷单元

雷电是一种常见的自然现象,它除了危及到人身安全外,还会对电气设备,特别是电子设备产生巨大的破坏作用。雷击及其电磁脉冲在线路上形成暂态过电压,沿着线路侵袭并危及电气或电子设备安全。

随着海洋监测业务的不断发展,电子设备广泛应用,信息设备高度集成,其耐冲击能力却显著下降;导致因雷电产生的雷击电磁脉冲对电子设备的损害事件时有发生,严重干扰了海洋监测业务的正常开展。

为防止雷击放电损坏各种海洋监测及传输设备,保障数据采集和传输的完整性和连续性,必须采用科学、有效的综合防护系统,应对所有处于危险的接口,如信号输入端、电源端等,安装电涌保护装置,根据需要在被保护设备前端单独或组合安装电涌保护装置,将电涌导入大地,保护设备安全运行。

防雷系统通过接闪器及相关接地装置、各类电源及信号电涌保护装置,实现对室外和室内设备的雷击保护,具体功能如下:

气象观测场直击雷保护;太阳能供电系统电涌保护;视频监控系统电涌保护;灾害观测系统电涌保护;水文、气象信号电缆电涌保护;交流电源供电系统电涌三级防护(需测试施工支持和配合);室内电子设备(UPS、数据采集器等)外壳接地防护;各类数据接口(DB9、双绞线以太网接口)电涌保护;光纤传输系统电涌保护。


5、数据接收处理系统

(1)设计说明

数据接收处理系统软件可自动接收、处理、存储、显示海洋站各子系统传输的数据;自动生成报文、月报表等文件。数据处理的方法、生成的文件内容和遵循的通讯协议符合《海洋观测规范第2部分海滨观测》(GB/T14914.2-2019)(GB/T14914-2006)和我国当前正在业务运行的海洋数据传输网的要求。软件使用方便;能同时处理多个海洋站的数据。

(2)系统功能

数据接收处理系统软件主要功能如下:

1)同时处理多个海洋站的数据,并进行处理、显示、存储和质量控制;

2)生成实时数据文件、整点数据文件、报文文件和月报文件,数据处理的方法、生成的文件内容符合《海洋观测规范》(GB/T14914.2-2019)相关要求,符合海洋数据传输网和业务工作的要求;

3)与子系统的通信方式有光纤、SDH专线、4G/5G、北斗三号、CDMA/GPRS等方式,可以同时支持上述方式中的两种或以上;预留向数据传输网传输数据的接口,能够将文件传入国家海洋数据传输网。

4)专线、手机无线和卫星通信多路并行传输,数据传输中断恢复后,能够自动补发上传观测数据和报文。

5)软件使用地图和图形,界面友好,使用方便;能同时处理多个海洋站的数据。对接收的数据进行初步质量控制,内容包括剔除粗大误差、测量值上下限检查、时间连续性检查、传感器不变性检查等,实时显示当前全部测量数据和各要素的时间序列图;

6)在海洋站自动观测系统安装就绪后和运行过程中,可以根据需要,利用本软件对系统的运行状态进行测试,对系统的有关参数进行修改和设置,包括海洋站基本参数(海洋站代码、区站号、经纬度、海拔高度、水准点高程、设备代码等)设置、传感器标定参数设置、校时、数据通信参数设置等;

7)与海洋站目前运行的系统数据格式兼容,能够管理多个测点。

(3)系统组成

数据接收处理系统由计算机和海洋站数据接收处理软件构成。


6、灾害观测系统

(1)设计说明

在极端天气情况时,以往只能依靠文字、图片信息了解现场情况,不仅时效性差,而且缺乏对现场情况的全面了解和把握,给应急指挥带来一定影响,为彻底解决这一情况,据国家沿海防灾减灾视频监控系统的指导思想,建设布置高清摄像头。恶劣天气时,为应急指挥提供灾害现场视频。

该系统主要由高清视频监控系统对海洋站(点)观测海域海面状况进行动态跟踪监测,实时进行画面传输,以了解当时海洋站(点)观测海域海面的实际情况。

(2)系统功能

1)高清视频监控功能

系统可在指挥中心实现对各分支机构的远程监控、可集中浏览监控图像,进行电视墙显示输出,可对前端高清网络高速球进行控制(上、下、左、右,拉近、拉远),可实现高清晰图像监控,监控画质可到达720P。

2)远程录像查询

通过在前端NVR上配置存储硬盘可在前端进行实时监控录像存储,指挥中心可通过网络远程调取监控录像,进行回放或上电视墙显示输出。

3)点击居中、框选放大

系统配置的高清高速球型网络摄像机应支持点击居中和框选放大功能,即当用户发现需监控的目标不在图像的中心时,可双击需关注的位置,则这时图像将以用户关注的位置为中心呈现;当用户需近距离详细的观察目标时可在图像上框选,系统将自动把摄像机镜头拉近,从而更仔细个观看目标。此功能可迅速定位目标,使操作更为简便灵活。

实时对海洋站观测海域海面状况进行动态跟踪监测。了解当时海面的实际状况以及发生海洋灾害时获取第一手影像资料。轻松互联互通,昼夜、快速追踪并远距离观察监控海面。

(3)系统组成

灾害观测系统由网络摄像机、本地监控终端、宽频路由器、交换机组成,其中网络摄像机负责视频图像采集,本地监控终端显示实时视频监控画面,宽频路由器和交换机负责将视频信息压缩编码后传送至上级节点。系统流程图如下:

643d90e17afb66a22e664bb425151c09.jpeg

网络摄像机由高清视频监控子系统组成,室外型球形云台、支架、防护罩、监视器和传输线缆组成。云台可以水平和垂直的运动,根据海洋站(点)实际情况选择安装的类型。监控器系统从逻辑上可分为:前端、传输、后端三大部分。组成见下图:

15301d77109d969d90c976f15a8c2556.jpeg


7、数据可视化分析预警系统

(1)设计说明

数据可视化分析预警系统是对相关区域的各类环境指标进行实时管理、分析、预警和可视化表达的综合信息处理系统。通过融合传感器技术、物联网技术、无线通信技术和网络化平台、大数据及云计算技术,通过将前端监测设备获取空气、水质等环境监测实时的数据校准保存,同时为客户提供监测区域空气、水质的实时监测、污染溯源、预警预测等服务。

(2)系统功能

提供对监测区域环境的实时监测、污染溯源、预测预警等功能。

1)实时监测

基于GIS地图将环境监测区域的站点实时反馈信息进行显示,展示各站点环境指标详情。通过与预先设置的告警阈值进行比对,超过阈值则给予报警提示。

同时系统还提供相关站点的比对信息、历史监测数据以及监测指标的实时变化曲线等功能。

2)污染溯源

通过读取区域内相关历史监测数据,提供环境趋势热力图回放功能,展示过去一段时间范围内环境污染指标的变化情况,为污染溯源提供参考依据。

同时系统通过调用因子分析模型进行异常检测数据的关联性分析,结合污染源排放数据进行污染源对应分析,并调用污染层次分析模型结合相关经验数据,进行污染源诊断,进而获取对污染事故负主要责任污染源的定位,从而达到对污染源溯源目的。

3)预测预警

系统通过调用水质、空气预测模型,导入水质、空气监测数据、气象预测数据、相关调度方案等参数,对未来一段时间内水质、空气指标进行预测分析,获取监测区域环境预测分析成果,以图表的方式进行展示。同时将预测分析成果与预先设置的告警阈值进行比对,超过阈值则发布预警提示。

(3)系统组成

采用组件化技术和基于BROWER/APPSERVER/DBSERVER的三层应用架构模型,以B/S方式实现。集监测、数据收集、数据管理、分析处理等多项实用功能于一身的数据处理平台。可通过指标切换、图表对比,实现环境数据的管理与分析。此外,还可实现历年同时段数据的同期比较,同时同地的各项指标比较,不同地点的同一数据比较等多形式的数据比较分析。通过折线图、柱状图、饼状图等多角度的数据图表分析,再多方面得出数据分析结果。

生态指标数据可视化分析预警软件系统主要由海洋站点生态指标状态查询、生态指标实时监测、生态指标历史数据分析、区域污染溯源、用户管理、机构管理、角色权限管理、设备器材元数据、设备运行监控、传输链路监控、服务器状态监控、日志管理等模块构成。

为保证采集数据及时、存储数据可靠准确、分析预警随时可用,系统应具有高可用特性,保证系统可以不间断提供各种数据分析、信息共享、灾害预警等服务。且应有容灾机制,在发生类似火灾洪水等灾害时保证数据安全与系统可用。

总体技术指标:

1)满足B/S分布式应用模式要求;

2)支持Chrome、Firefox等主流WEB浏览器;

3)系统支持跨平台部署,支持docker形式部署;

4)支持数据节点的动态增减,数据节点可横向扩展;

5)数据存储须支持文本数据、结构化数据、日志数据、地理空间数据;

6)须包含统计图等数据可视化方法,支持大屏幕和PC端;

7)系统容量要求足够支撑各站各类数据采集汇总整合的数据资源,并能支持未来3年的数据资源增长;

8)具有故障自动回复能力,使可用性级别达到99.99%;

9)业务系统在灾难过程中的最大数据丢失量应小于1天;

10)业务系统从灾难状态回复导可运行状态需时间应在24小时内;


8、水准测量

潮汐观测中的水准测量是通过国家高程基准点的联测,确定本站潮高基准面,完成潮位测量。

(1)设计说明

水准测量是潮汐观测中非常重要的组成部分,包括本站基本水准点或校测水准点的建立、由专业测绘部门从高一等的水准点进行引测和潮位观测各基面的确定、工作测量两部分。通过水准测量完成本站潮高基准面、读数指针等确定,从而使测量的潮位值换算到国家高程面上,真正为风暴潮等预警提供准确可靠的潮位观测数据。

(2)系统功能

水准测量是用水准仪和水准尺测定地面上两点间高差的方法。在地面两点间安置水准仪,观测竖立在两点上的水准标尺,按尺上读数推算两点间的高差。通常由水准原点或任一已知高程点出发,沿选定的水准路线逐站测定各点的高程。由于不同高程的水准面不平行,沿不同路线测得的两点间高差将有差异,所以在整理国家水准测量成果时,须按所采用的正常高系统加以必要的改正,以求得正确的高程,即本站基本水准点、校测水准点测量确定。再经过本站工作测量完成本站潮高基准面、读数指针等确定。

(3)系统性能

水准测量主要性能指标如下:标准偏差1.5mm;望远镜成像:正像;放大倍数:30x;物镜通光孔径42mm;视场角1.5°;最短视距0.5m;安平精度±0.5″;管状水准器角值:20¨/2mm;圆水准器角值:8’/2mm。

(4)系统组成

水准测量主要由水准仪完成测量,采用建立水平视线测定地面两点间高差的仪器。水准仪的主要作用是提供一条水平视线,并能照准水准尺进行读数。因此,水准仪主要由望远镜、水准器及基座三部分组成。完成水准测量需要水准仪、支架和水准尺三部分。

e3daf2de0e19f0a619217a7073926078.png

4 外海平台海洋站布置图方案一



(三)海洋站初步设计

外海观测平台采用桩式固定平台,桩基采用TSC-C-II管桩,直径1400mm,钢管壁厚16mm,钢材型号为Q345B,桩长60米,要求耐腐蚀、抗冻、抗渗等。包含温盐井、验潮井、生态井,平台整体采用双层布置,设有停船设施,声光告警驱离设施。

a9ab7e063fcdce370cbd11d40406b1c6.png

5 外海平台海洋站断面图

aab5908cd7d7e575478975a29161fe5f.png

6 外海平台海洋站立面图


近海观测平台采用桩式固定平台,桩基采用D1400C60-2预应力大管桩,桩长50米,要求耐腐蚀、抗冻、抗渗等,包含温盐井、验潮井、生态井,平台整体采用单层布置,通过透水引桥上平台,设有声光告警驱离设施。

37b89373995e032bb7ba717b32f26146.png

7 近海平台海洋站断面图

0bca847ef2a18c304346bd60cd1030a1.png

图8 海洋站平台一层设备布置图

9cbed69f3e09af3a7f0d83541829a0f8.png

9 海洋站平台屋面设备布置图

fa8e5b9d75ef85878efa5c24295b9312.png

10 风塔设备布置图


1、平台配有观测室,使用面积不少于16平米,平台观测室温盐井、验潮井、生态井,上方布置观测台,台面积不小于1m2,高度1.2m。安装时设置井内水尺,引测好水位基准点。同时可放置气象观测系统数据采集器。

2、风塔建在平台观测室顶,距平台高度应在6m,且距地面高度不得低于10m。风塔应便于人员上爬及操作,设有操作平台及护栏。风塔用混凝土浇筑基座,地基应坚固、耐腐蚀、抗台风,并且便于设备的安装和维修,气象塔配有预埋件,预埋件采用Q235钢材,配双母,出混凝土螺纹部分涂黄油。

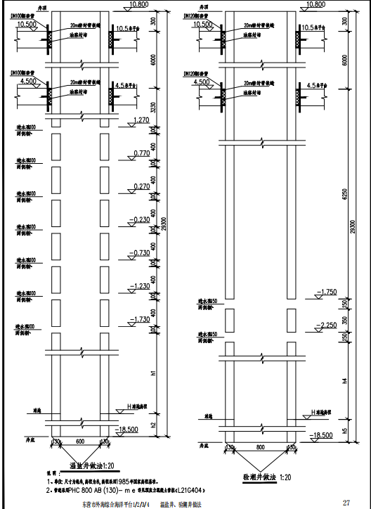
3、验潮井井筒采用钢筋混凝土浇灌制成,井筒为圆形,内径0.6m,井口高于理论最高潮位1.5m~2m,井底低于理论最低潮位1m,井筒开有进水孔,其高度约在理论最低潮位下0.5m~1m处,进水管道必须使井内与井外潮位差小于1cm。验潮井要具有良好的消波性能。

4、温盐井是专门用来观测表层海水温度和表层海水盐度的建筑,一般可建设在验潮井旁或与验潮井同时建设,井筒内径一般不小于0.4m,在理论最高潮位和理论最低潮位之间,每隔0.5m设一进水孔,进水孔直径不小于0.1m,保证井内外水体自由交换。

5、生态监测井需要有良好水交换性能,井筒内径0.8m,其他指标按照验潮井设计。

4c2573b038a71beda9dcea4a038bc24c.png

11 温盐井、验潮井做法示意图


6、水位传感器安装于潮位井筒上方,要充分考虑当地潮差,根据码盘直径准确计算重锤至码盘的缆绳长度,以避免低潮时水位传感器露出水面,对于需要固定安装在水下的传感器,其安装高度应低于潮高基准面下1m。

98381ef27559b1f4928e38088cc0ad76.jpeg


7、温盐传感器安装于温盐井筒内,必须安装浮子,以保证传感器随着潮水涨落始终能保持在水面以下0⁓50厘米处。安装时可在传感器外表涂上保护层,防止海蛎子等附着生物的侵袭。

8、温湿度传感器安装于百叶箱,百叶箱箱门朝北固定于平台观测室顶,预置混凝土底座时预埋4个固定螺丝,以固定百叶箱支架,传感器安装高度1.5米,或可配备温湿罩,安装高度1.5m,安装于气象塔。

9、能见度仪安装于平台观测室顶,用混凝土浇筑基座,地基尺寸:40×40×55厘米,高出地面20厘米(预埋安装用地脚螺丝或使用膨胀螺栓),或采用支架连接安装于气象塔,保证能见度仪安装尺寸高于1.5米以上。

10、雨量传感器基座尺寸:35×35×55厘米,高出地面5厘米(预埋安装用地脚螺丝或使用膨胀螺栓),或安装于气象塔,保持雨量筒口高距离地面70cm±3cm。

11、风传感器安装于风塔顶部,风传感器底座焊接固定于风塔。

12、大气颗粒物采样系统安装于平台上,用混凝土浇筑基座,地基尺寸:40×40×55厘米,高出地面20厘米(预埋安装用地脚螺丝或使用膨胀螺栓)。

13、高锰酸钾在线分析仪安装于观测室平台上或者挂于观测室内墙上,探头放置于生态井内。

14、多参数水质分析仪安装于观测室平台上,探头放置于生态井内。

15、营养盐在线分析仪放置于观测室平台上,探头放置于生态井内。

16、水中游分析仪放置于观测室平台上,探头放置于生态井内。

17、总氮分析仪放置于观测室平台上,探头放置于生态井内。

18、总磷分析仪放置于观测室平台上,探头放置于生态井内。

19、碳排放监测系统探头放置于室外,监测装置放置于室内。

20、太阳能支架安装于屋面及南侧平台上,用混凝土浇筑基座,地基尺寸:200×100×100厘米,高出地面20厘米,用膨胀螺栓固定。

21、平台及屋面均预留4-6个混凝土设备基座,以备后期系统升级使用。


(四)海洋站设备配置

8544276899d6d7607bb57a5771701f6a.jpeg













END















49162e65c38f14ba3cc3d0d90d9215d0.png
2f286cd82829fc55279ce31982da0c55.jpeg
      扫码关注
       科勘海洋
科学管理 勘定深海
ed9cb416cff768bb091b0aec5cf53e1c.gif

回复

举报 使用道具

相关帖子

全部回帖
暂无回帖,快来参与回复吧
懒得打字?点击右侧快捷回复 【吾爱海洋论坛发文有奖】
您需要登录后才可以回帖 登录 | 立即注册
超级爸爸
活跃在2026-4-4
快速回复 返回顶部 返回列表